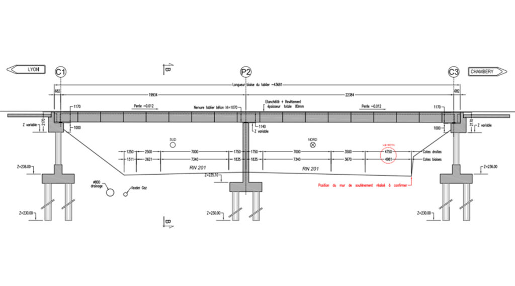
RÉALISATIONS A43 - PI 3004 Client APRR-AREA Localisation Chambéry (73) Prestation réalisée AVP – AMO Le projet en images Description de L’ouvrage Passage inférieur de l’A43 sur la VRU de Chambéry Enjeux des prestations Reconstruction – Opération coup de poing avec contrainte d’exploitation complexes Conception AVP + AMO de conception réalisation.